東京都青梅市河辺町8丁目の物件情報
大きな画像をクリックで全体画像が表示されます。
物件概要
- 価格
- 3,800万円
- 表面利回り
- -%
- 築年数
- 1989年1月 (築36年)
- 建物面積
- 388.71㎡(登記簿)
- 土地面積
- 165.36㎡(公簿)
- アクセス
- 青梅線 河辺駅 徒歩13分
- 所在地
- 東京都青梅市河辺町8丁目
ローンシミュレーター
条件(元利均等支払・金利固定)
- 物件金額
- 万円
- 頭金
- 万円
- ボーナス払い内訳
- 万円
- 借入期間
- 年
- 金利
- %
試算する
シミュレーション結果
- 月々のお払い額
- 円
- ボーナス払い
- 円
- 一年間の返済総額
- 円
- ご返済総額
- 円
シミュレーションのため、実際のお支払金額と異なる場合があります。
ボーナス支払いは年2回で試算します。
閉じる
物件の費用・契約情報
- 価格
- 3,800万円
- 想定利回り/
想定賃料(年額) - -
- 引渡時期
- 相談
- 備考
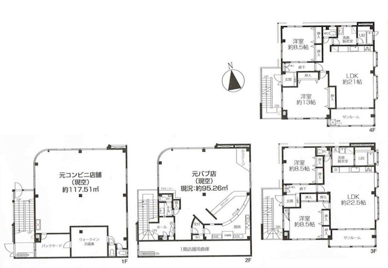
- ★河辺駅利用可能 平成1年築売ビル S造4階建
★1階店舗現空・2階店舗現空・3階住宅現空・4階住宅(居住中)
★1階元コンビニ店冷蔵庫あり・2階元パブカウンター内装厨房機器等有り・3階告知事項有り、元賃貸住宅・屋上電波中継等有り、プレハブ事務所有り
※利回りとは、当該不動産の1年間の予定賃料収入の不動産取得対価に対する割合であり、公租公課その他当該物件を維持するために必要な費用の控除前のものです。また、予定賃料収入が確実に得られることを保証するものではありません。
物件の詳細情報
- 所在地
- 東京都青梅市河辺町8丁目
- 交通
- 青梅線 河辺駅 徒歩13分
※交通距離は建物出入り口を起点とし、算出 - 物件種別
- ビル
- 総戸数
- 全-戸
- 専有面積
- -㎡〜-㎡
※未入力時、専有面積不明あるいは備考欄参照 - 階数
- -階
- 構造
- 鉄骨
- 建物状況
- 居住中
- 土地の権利形態
- 所有権
- 用途地域
- 第一種住居地域
その他の情報
- 取引態様
- 媒介(仲介)
- 情報更新日
- 2022年8月21日
- 次回更新日
- 2022年9月21日
- 自社管理番号
- 100106269771
東京都青梅市河辺町8丁目のお問い合わせ
- 掲載数全国No,1
2024年4月23日時点
自社調べ -
-
-
-
-
-
Contents
What's New
- 2025年11月28日 頭金100万円から始める不動産投資②
- 2025年11月25日 頭金100万円から始める不動産投資①
- 2025年11月21日 民法集㉕
- 2025年11月14日 民法集㉔
- 2025年10月28日 民法集㉓






