東京都板橋区前野町2丁目の物件情報
大きな画像をクリックで全体画像が表示されます。
物件概要
- 価格
- 8,900万円
- 表面利回り
- 5.54%
- 築年数
- 2017年12月 (築8年)
- 建物面積
- 132.8㎡(登記簿)
- 土地面積
- 60.14㎡(公簿)
- アクセス
- 東武東上線 ときわ台(東京)駅 徒歩7分
都営三田線 板橋本町駅 徒歩18分 - 所在地
- 東京都板橋区前野町2丁目
ローンシミュレーター
条件(元利均等支払・金利固定)
- 物件金額
- 万円
- 頭金
- 万円
- ボーナス払い内訳
- 万円
- 借入期間
- 年
- 金利
- %
試算する
シミュレーション結果
- 月々のお払い額
- 円
- ボーナス払い
- 円
- 一年間の返済総額
- 円
- ご返済総額
- 円
シミュレーションのため、実際のお支払金額と異なる場合があります。
ボーナス支払いは年2回で試算します。
閉じる
物件の費用・契約情報
- 価格
- 8,900万円
- 想定利回り/
想定賃料(年額) - 5.54% / 4,932,000円
- 引渡時期
- 相談
- 備考
- ★駅歩7分!2017年築!充実の設備・仕様!
★設備・仕様:TVモニター付きインターホン・浴室暖房換気乾燥機付き・エアコン・フローリング・室内洗濯機置場等 設備:都市ガス・公営水道・公共下水道
★準防火地域 第3種高度地区 接道:南公道幅員9M・東公道幅員5.45M 現況優先/現況引渡/付帯条件や別途料金が発生する場合もありますのでご確認ください。
※利回りとは、当該不動産の1年間の予定賃料収入の不動産取得対価に対する割合であり、公租公課その他当該物件を維持するために必要な費用の控除前のものです。また、予定賃料収入が確実に得られることを保証するものではありません。
物件の詳細情報
- 所在地
- 東京都板橋区前野町2丁目
- 交通
- 東武東上線 ときわ台(東京)駅 徒歩7分
都営三田線 板橋本町駅 徒歩18分
※交通距離は建物出入り口を起点とし、算出 - 物件種別
- アパート
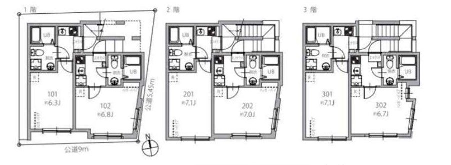
- 総戸数
- 全6戸
- 専有面積
- -㎡〜-㎡
※未入力時、専有面積不明あるいは備考欄参照 - 階数
- 3階
- 構造
- 木造
- 建物状況
- 賃貸中
- 土地の権利形態
- 所有権
- 用途地域
- 近隣商業地域
その他の情報
- 取引態様
- 媒介(仲介)
- 情報更新日
- 2022年8月25日
- 次回更新日
- 2022年9月25日
- 自社管理番号
- 2022051604
東京都板橋区前野町2丁目のお問い合わせ
- 掲載数全国No,1
2024年4月23日時点
自社調べ -
-
-
-
-
-
Contents
What's New
- 2025年12月12日 頭金100万円から始める不動産投資⑤
- 2025年12月9日 頭金100万円から始める不動産投資④
- 2025年12月8日 頭金100万円から始める不動産投資③
- 2025年11月28日 頭金100万円から始める不動産投資②
- 2025年11月25日 頭金100万円から始める不動産投資①





